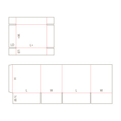
0200 Uritetut laatikot
FEFCO 0200 on yksinkertainen kuljetuslaatikko, joka valmistetaan yhdestä liimatusta aaltopahvilevystä ja jonka yläosa (tai alaosa, jos käytetään kantena) on avoin. Se suljetaan yleensä teipillä ja yhdistetään usein muihin laatikkomalleihin, kuten FEFCO 0300.
















































































































































